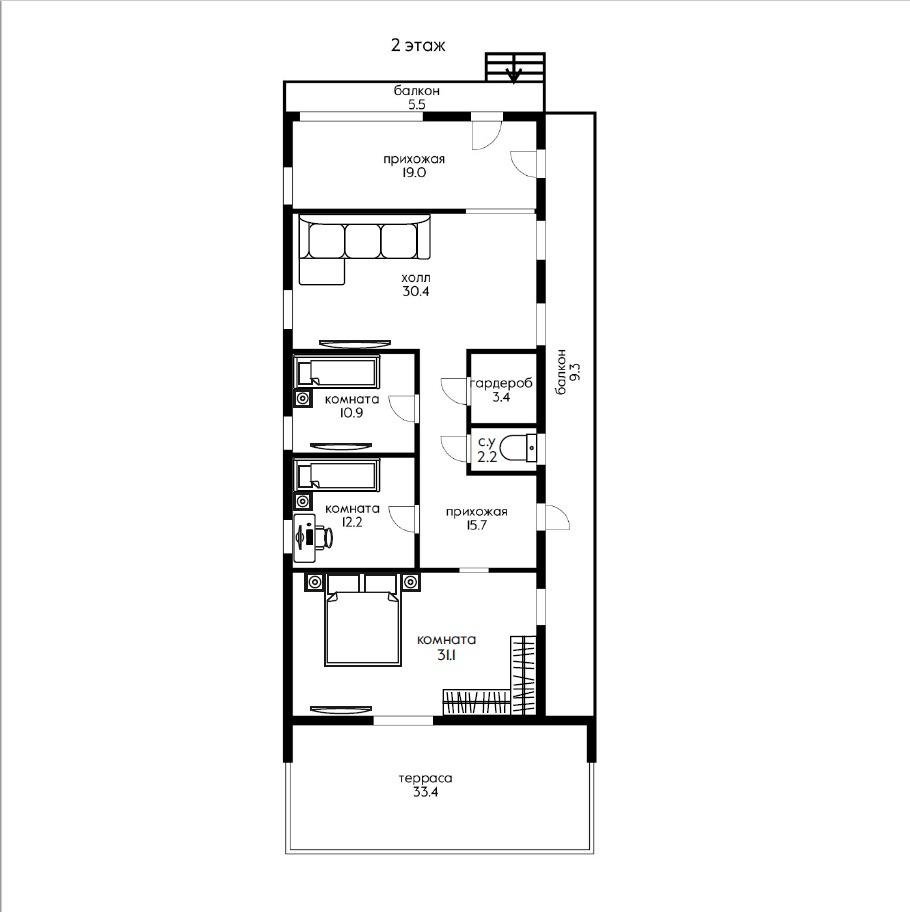
В продаже два жилых дома на одном участке в самом центре города АНАПА. Основной дом: первый этаж кирпичный (три спальни, гостиная, кухня, совм. сан.узел, прихожая); второй этаж сэндвич панели, внутри полностью отделка дерево (холл, три комнаты, гостиная, терраса, разд. сан.узел, два выхода на балкон) и цокольный этаж, в котором расположен гараж на 4 машины. Площадь двух этажей основного дома и гаража 350м2. Все коммуникации центральные: газ, свет, вода, а также центральная канализация. Несмотря на то, что земельный участок с небольшим фасадом площадью 3,2 сотки, на нем всё очень правильно и разумно размещено. На участке, кроме основного дома, имеется ещё один жилой, со всеми коммуникациями: трехэтажный дом, в котором на первом этаже: кухня-гостиная, спальня и совм. сан.узел, на втором этаже: две спальни и огромная гостиная, третий этаж свободной планировки (второй и третий этажи внутри отделаны деревом). Лучшего местоположения дома нельзя и придумать, рядом всё: школы, детские сады, рынок, развлекательные и торговые организации. Рядом с домом расположен личный торговый бизнес (капитального строения магазин и рядом павильон), возможно приобрести коммерческий объект одновременно с домом. Это отличные объекты для собственного проживания и параллельной сдачи в аренду, т.к. в каждый дом и на каждый этаж отдельные входы и все коммуникации. И самый главный момент для проживания в курортном городе - близость к морю. Очень близко два направления к разным пляжам, а также к главной Набережной г. Анапа. Покупатель, обращаю Ваше внимание, что оплату комиссии приобретения дома, взял на себя продавец. Торг возможен. Все документы в порядке и готовы к продаже. От Вас лишь желание посмотреть и приобрести этот замечательный дом! Звоните, с удовольствием расскажу Вам подробнее.
Арт.1013374037
Оставьте свой номер телефона, мы назначим время звонка и поможем принять решение